Pracownia: ProArte, autor projektu: ProArte
| pow. użytkowa | 65,20m2 | kubatura | 395,00m3 | kąt dachu | 43° |
|---|---|---|---|---|---|
| pow. zabudowy | 52,50m2 | wys. pomieszczeń | b/d | wymiary budynku | 7,50m x 7,00m |
| pow. dachu | b/d | wys. budynku | b/d | min. wym. działki | 20,17m x 15,00m |
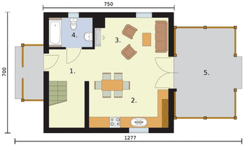
Przyziemie: 54,87 m2(54,87 m2)
| Lp. | Opis | Powierzchnia |
|---|---|---|
| 1. | Komunikacja | 6,95 m2 |
| 2. | Kuchnia z aneksem jadalnym | 10,72 m2 |
| 3. | Pokój dzienny | 15,68 m2 |
| 4. | Łazienka | 4,06 m2 |
| 5. | Weranda | 17,46 m2 |
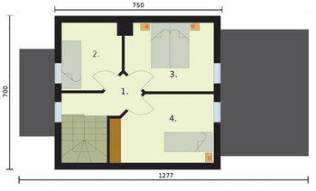
Poddasze: 27,79 m2(27,79 m2)
| Lp. | Opis | Powierzchnia |
|---|---|---|
| 1. | Komunikacja | 5,92 m2 |
| 2. | Pokój | 5,19 m2 |
| 3. | Pokój | 7,99 m2 |
| 4. | Pokój | 8,69 m2 |
Orlean 3 to najdoskonalszy projekt z serii Orlean. Za jego niepowtarzalny styl odpowiedzialne są przewidywanie praktycznych zastosowań projektu oraz jego dopracowanie w każdym szczególe. Uwagę zwraca poddasze z dwoma oknami wychodzącymi na zachód, pod nimi znajduje się gustowny, drewniany ganek, nadający wejściu estetycznego charakteru. Dach z obu stron spinają eleganckie gotowe jętki ozdobne, do kupienia w całości. Weranda z ślicznym balkonem stanowiącym jej zadaszenie znajduje się po przeciwnej stronie domu. Na parterze znajdziemy komunikację wiodącą do łazienki i pokoju dziennego z aneksem kuchennym, miejscem centralnym skupiającym domowników, nie tylko w zimowe wieczory, będzie z pewnością znajdujący się w salonie kominek. Na poddaszu zostały rozmieszczone trzy sypialnie, każda z nich posiada własne wyjście na klatkę schodową. Projekt dostępny również jako CAŁOROCZNY!!! Ze względu na docieplenie budynku do każdego wymiaru widocznego na rzucie należy dodać 20cm. Projekt składa się z części architektonicznej, konstrukcyjnej, wewnętrznych instalacji wod.-kan, c. o. i elektrycznej. W projekcie załączone są podstawowe zestawienie stali, drewna i stolarki okienno-drzwiowej. Do projektu dołączamy bezpłatną zgodę na wprowadzenie zmian, oświadczenie projektantów o wykonaniu projektu zgodnie z obowiązującymi normami i przepisami oraz kserokopie uprawnień projektantów wraz z aktualnym wpisem do izby. W przypadku zamówienia projektu w technologii lekkiej, drewnianej konstrukcji szkieletowej, powierzchnia użytkowa budynku jest o około 7% większa.
Technologia tradycyjna :
- ściany zewnętrzne murowane grubości 30 cm,
działowe gr. 12 cm. Wszystkie ściany wykonane z pustaków ceramicznych
\"POROTHERM\".
- konstrukcja więźby dachowej drewniana, pokrycie dachówka
ceramiczna.
- istnieje mozliwośc adaptacji obiektu na budynek całoroczny
- docieplenie warstwą styropianu gr. 10 cm.
Technologia szkieletu drewnianego :
- ściany zewnętrzne : słupki 4x15 rozstawione max. co 40cm obite
zewnątrz płytą OSB 3 1,2cm , a wewnątrz płytą GK 1,25cm , przestrzeń
pomiędzy słupkami wypełniona wełną mineralną 15cm.
- ściana wewnętrzna : słupki 4x7 rozstawione max. co 40cm obite z
dwóch stron płytą GK 1,25cm przestrzeń pomiędzy słupkami wypełniona
wełną mineralną 7cm
- konstrukcja więźby dachowej drewniana, pokrycie dachówka
ceramiczna.
- istnieje mozliwośc adaptacji obiektu na budynek całoroczny
- docieplenie warstwą styropianu gr. 10 cm.
















