nazwa: pow. użytkowa: do: nr projektu:
znaleziono
projektów:

Pracownia

> zobacz więcej

Typ budynku

> zobacz więcej

Poddasze

Dach

Garaż

Technologia

Pokaż
ORLEAN 3 dom letniskowy
- lustrzane odbicie
(DB 10596)
(1/1)

Pracownia: ProArte, autor projektu: ProArte

Zamknij
Pokaż
pow. użytkowa 65,20m2 kubatura 395,00m3 kąt dachu 43°
pow. zabudowy 52,50m2 wys. pomieszczeń b/d wymiary budynku 7,50m x 7,00m
pow. dachu b/d wys. budynku b/d min. wym. działki 20,17m x 15,00m

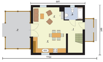
Przyziemie: 54,87 m2(54,87 m2)

Rzut  projektu ORLEAN 3 dom letniskowy
Lp.OpisPowierzchnia
1.Komunikacja6,95 m2
2.Kuchnia z aneksem jadalnym10,72 m2
3.Pokój dzienny15,68 m2
4.Łazienka4,06 m2
5.Weranda17,46 m2

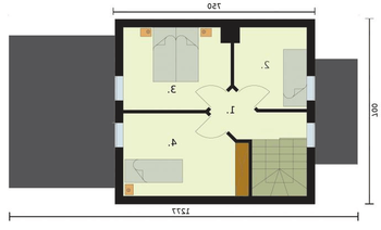
Poddasze: 27,79 m2(27,79 m2)

Rzut  projektu ORLEAN 3 dom letniskowy
Lp.OpisPowierzchnia
1.Komunikacja5,92 m2
2.Pokój5,19 m2
3.Pokój7,99 m2
4.Pokój8,69 m2

Orlean 3 to najdoskonalszy projekt z serii Orlean. Za jego niepowtarzalny styl odpowiedzialne są przewidywanie praktycznych zastosowań projektu oraz jego dopracowanie w każdym szczególe. Uwagę zwraca poddasze z dwoma oknami wychodzącymi na zachód, pod nimi znajduje się gustowny, drewniany ganek, nadający wejściu estetycznego charakteru. Dach z obu stron spinają eleganckie gotowe jętki ozdobne, do kupienia w całości. Weranda z ślicznym balkonem stanowiącym jej zadaszenie znajduje się po przeciwnej stronie domu. Na parterze znajdziemy komunikację wiodącą do łazienki i pokoju dziennego z aneksem kuchennym, miejscem centralnym skupiającym domowników, nie tylko w zimowe wieczory, będzie z pewnością znajdujący się w salonie kominek. Na poddaszu zostały rozmieszczone trzy sypialnie, każda z nich posiada własne wyjście na klatkę schodową. Projekt dostępny również jako CAŁOROCZNY!!! Ze względu na docieplenie budynku do każdego wymiaru widocznego na rzucie należy dodać 20cm. Projekt składa się z części architektonicznej, konstrukcyjnej, wewnętrznych instalacji wod.-kan, c. o. i elektrycznej. W projekcie załączone są podstawowe zestawienie stali, drewna i stolarki okienno-drzwiowej. Do projektu dołączamy bezpłatną zgodę na wprowadzenie zmian, oświadczenie projektantów o wykonaniu projektu zgodnie z obowiązującymi normami i przepisami oraz kserokopie uprawnień projektantów wraz z aktualnym wpisem do izby. W przypadku zamówienia projektu w technologii lekkiej, drewnianej konstrukcji szkieletowej, powierzchnia użytkowa budynku jest o około 7% większa.

Technologia tradycyjna :
- ściany zewnętrzne murowane grubości 30 cm,
działowe gr. 12 cm. Wszystkie ściany   wykonane z pustaków ceramicznych
\"POROTHERM\".
- konstrukcja więźby dachowej drewniana, pokrycie dachówka
ceramiczna.
- istnieje mozliwośc adaptacji obiektu na budynek całoroczny
- docieplenie warstwą styropianu gr. 10 cm.

Technologia szkieletu drewnianego :
- ściany zewnętrzne : słupki 4x15 rozstawione max. co 40cm obite
zewnątrz płytą OSB 3 1,2cm , a wewnątrz płytą GK 1,25cm , przestrzeń
pomiędzy słupkami wypełniona wełną mineralną 15cm.
- ściana wewnętrzna : słupki 4x7 rozstawione max. co 40cm obite z
dwóch stron płytą GK 1,25cm przestrzeń pomiędzy słupkami wypełniona
wełną mineralną 7cm
- konstrukcja więźby dachowej drewniana, pokrycie dachówka
ceramiczna.
- istnieje mozliwośc adaptacji obiektu na budynek całoroczny
- docieplenie warstwą styropianu gr. 10 cm.

DOBRY DOM

ul. Wrzesława Romańczuka 6, 35-302 Rzeszów

8:00-16:00

17 852 52 20