Pracownia: ProArte, autor projektu: ProArte
| pow. użytkowa | 59,80m2 | kubatura | 253,00m3 | kąt dachu | 43° |
|---|---|---|---|---|---|
| pow. zabudowy | 45,50m2 | wys. pomieszczeń | b/d | wymiary budynku | 7,00m x 6,50m |
| pow. dachu | b/d | wys. budynku | b/d | min. wym. działki | 14,00m x 14,50m |
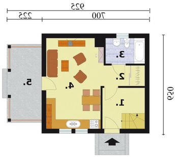
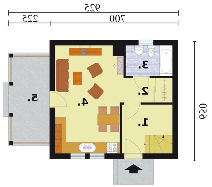
Przyziemie: 45,12 m2(45,12 m2)
| Lp. | Opis | Powierzchnia |
|---|---|---|
| 1. | Wiatrołap z klatką schodową | 7,12 m2 |
| 2. | Komunikacja z garderobą | 3,60 m2 |
| 3. | Łazienka | 4,10 m2 |
| 4. | Pokój dzienny z aneksem | 20,73 m2 |
| 5. | Weranda | 9,57 m2 |
Poddasze: 24,37 m2(24,37 m2)
| Lp. | Opis | Powierzchnia |
|---|---|---|
| 1. | Komunikacja | 5,73 m2 |
| 2. | Sypialnia | 5,45 m2 |
| 3. | Sypialnia | 6,58 m2 |
| 4. | Sypialnia | 6,61 m2 |
Orlean 2 - projekt domu letniskowego Wszystkim tym, którzy szukają czegoś oryginalnego, proponujemy zapoznanie się z projektem domku letniskowego Orlean 2. Za jego niepowtarzalny styl odpowiedzialne jest poddasze bez okien połaciowych oraz weranda z ślicznym balkonem stanowiącym jej zadaszenie.
Jeżeli interesują Cię domki letniskowe z poddaszem, ale jesteś zwolennikiem tradycyjnej werandy to zapoznaj się z projektem Limy! Powracając do wyżej wspomnianego Orleanu zauważmy, że na poddaszu zostały rozmieszczone trzy sypialnie tak, aby każda posiadała własne wyjście na klatkę schodową. Idąc schodami w dół zejdziemy do niewielkiego przedsionka, z którego łatwo możemy przejść do pomieszczenia zwanego komunikacją, aby następnie odkryć okazały pokój dzienny z aneksem kuchennym oraz łazienkę. Wypada również wspomnieć o tym, że cała przestrzeń szybko i dogłębnie zostanie ogrzewana przez kominek; przy którym można spędzić mnóstwo romantycznych wieczorów! Drewniane oblicowanie dodaje projektowi tradycyjnego charakteru, jest to rozwiązanie ze wszech miar ekologiczne.
Projekt składa się z części architektonicznej, konstrukcyjnej, wewnętrznych instalacji wod.-kan, c. o. i elektrycznej. W projekcie załączone są podstawowe zestawienie stali, drewna i stolarki okienno-drzwiowej. Do projektu dołączamy bezpłatną zgodę na wprowadzenie zmian, oświadczenie projektantów o wykonaniu projektu zgodnie z obowiązującymi normami i przepisami oraz kserokopie uprawnień projektantów wraz z aktualnym wpisem do izby.
Dostępna także wersja murowana.
















