Kuba
- wersja podstawowa
(DD 10100)
Pracownia: Domowe Klimaty, autor projektu: Jarosław Charkiewicz
| pow. użytkowa | 80,85m2 | kubatura | 347,00m3 | kąt dachu | 42° |
|---|---|---|---|---|---|
| pow. zabudowy | 114,33m2 | wys. pomieszczeń | 2,60m | wymiary budynku | 13,92m x 12,35m |
| pow. dachu | 202,00m2 | wys. budynku | b/d | min. wym. działki | 22,31m x 21,35m |

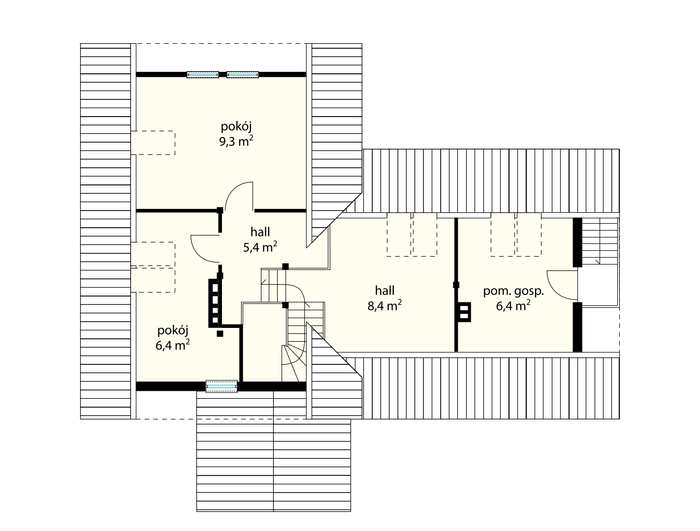
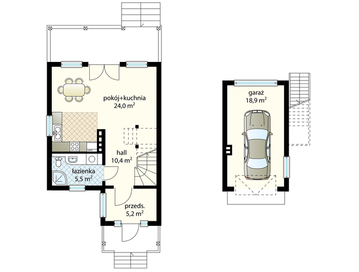
Dom wolno stojący, z użytkowym poddaszem, niepodpiwniczony. Na parterze część dzienna połączona z tarasem oraz część gospodarcza z wiatą i garażem. Na poddaszu można urządzić 4 sypialnie, w tym jedną z osobnym wejściem. Dom planowany na letniskowy do wykorzystania przez cały rok. Polecamy też inne projekty domów jednorodzinnych. Posiadamy w ofercie domy parterowe, piętrowe, z poddaszem użytkowym, szeregówki i bliźniaki.
dach_ dachówka cementowa
elewacje_ szalówka drewniana lub widoczne bale
strop_ drewniany belkowy
ściany_ wewnętrzne_ drewniane
zewnętrzne_ bale drewniane















