Pracownia: Bajer Dom, autor projektu: arch. Marek Bajer
| pow. użytkowa | 159,23m2 | kubatura | 754,90m3 | kąt dachu | 40° |
|---|---|---|---|---|---|
| pow. zabudowy | 121,90m2 | wys. pomieszczeń | 2,70m | wymiary budynku | 12,32m x 9,90m |
| pow. dachu | b/d | wys. budynku | b/d | min. wym. działki | 20,32m x 18,90m |





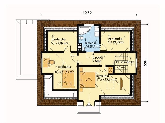
Charakterystyka
Dom jednorodzinny parterowy z użytkowym poddaszem przeznaczony dla 4 – 5 osobowej rodziny. Zostały wydzielone strefy. na parterze dzienna to pokój dzienny z kominkiem. kuchnia ze spiżarką. wc i hol i nocna to dwie sypialnie z łazienką na parterze natomiast druga strefa nocna na poddaszu z dwoma sypialniami i łazienka z garderobami. Dach o kącie nachylenia 400 kryty blacho dachówką
Technologia i konstrukcja
Budynek zaprojektowano w konstrukcji drewnianej tzw kanadyjczyk. Ściany wewnętrzne i zewnętrzne drewniane. słupki o przekroju 4 x 14 cm. strop nad parterem i więźba dachowa drewniana. Ściany na zewnątrz szalówka drewniana lub tynk akrylowy na styropianie. wewnętrzne płyta gipsowo kartonowa
















