Lahti (LMWD03)
- wersja podstawowa
(DB 16599)
(1/1)
Pracownia: Lipińscy Domy, autor projektu: dr inż. arch. Ludwika Juchniewicz-Lipińska, dr inż. arch. Miłosz Lipiński
| pow. użytkowa | 54,64m2 | kubatura | 272,00m3 | kąt dachu | 45° |
|---|---|---|---|---|---|
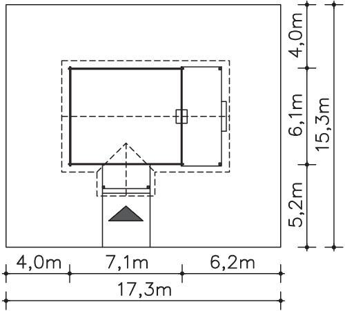
| pow. zabudowy | 48,55m2 | wys. pomieszczeń | b/d | wymiary budynku | 7,10m x 6,10m |
| pow. dachu | b/d | wys. budynku | b/d | min. wym. działki | 17,30m x 17,60m |
Parter: 38,39 m2(38,39 m2)
| Lp. | Opis | Powierzchnia |
|---|---|---|
| 1.1 | Pokój rekreacyjny | 25,44 m2 |
| 1.2 | Kuchnia | 8,28 m2 |
| 1.3 | Łazienka | 4,67 m2 |
| 1.4 | Podest | 4,50 m2 |
| 1.5 | Taras | 15,16 m2 |
Poddasze: 16,25 m2(28,03 m2)
| Lp. | Opis | Powierzchnia |
|---|---|---|
| 2.1 | Pokój | 13,48 m2 |
| 2.2 | Schody | 2,77 m2 |





Lahti (LMWD03): Dom weekendowy parterowy z poddaszem użytkowym, 2 pokoje: jedna sypialnia. Romantyczny, niewielki domek letniskowy z bala drewnianego, prosty i tani w realizacji. Wejście do domu zaakcentowane jest poprzez zadaszony ganek. Na parterze jest pokój rekreacyjny z kominkiem i wyjściem na taras, aneks kuchenny i łazienka. Usytuowanie kominka pozwala na jego użytkowanie wewnątrz i na zewnątrz domu. Duży zadaszony taras przy pokoju rekreacyjnym, daje cień i osłania przed deszczem.

















