Pracownia: Studio 51
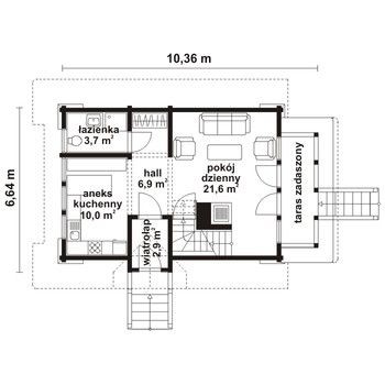
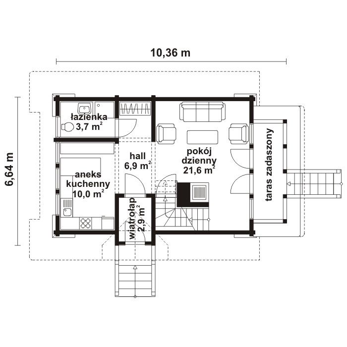
| pow. użytkowa | 141,30m2 | kubatura | 560,00m3 | kąt dachu | 53° |
|---|---|---|---|---|---|
| pow. zabudowy | 63,90m2 | wys. pomieszczeń | 2,60m | wymiary budynku | 10,36m x 6,64m |
| pow. dachu | b/d | wys. budynku | b/d | min. wym. działki | 20,60m x 15,80m |





OPIS:
Jaworowy 2 - dom weekendowy, całoroczny dla 4-6-osobowej rodziny w formie nawiązującej do szałasu podhalańskiego. Może być wykorzystany jako mały domek jednorodzinny. Zadaszony taras na parterze i taras na poddaszu.
KONSTRUKCJA:
- Ławy fundamentowe betonowe.
- Ściany podmurówki betonowe, obłożone piaskowcem.
- Podłoga parteru na płycie żelbetowej.
- Ściany parteru z płazów o grubości 16cm, łączonych tradycyjnie, opcjonalnie ściany
z płazów łączonych na felc.
- Wykończenie narożników ścian w postaci węgła prostego. Dopuszcza się
zastosowanie węgła krytego lub węgła półkrytego.
- Okapy z rysiami witkiewiczowskimi. Alternatywnie z rysiami stylizowanymi lub z
rysiami prostymi. Strop nad parterem z tragarzami oraz rzeźbionym sosrębem.
- Dach krokwiowo-jętkowy, kryty gontem lub blachą tłoczoną gontopodobną Corona.
- Ogrzewanie olejowe i kominek.
OPCJE:
- Istnieje możliwość zamówienia projektu w postaci lustrzanego odbicia, a także w
wersji bez podpiwniczenia.
- Projekt obiektu w wersji podpiwniczonej może być zamówiony z ogrzewaniem
elektrycznym lub z kotłownią na olej opałowy.
- Istnieje także możliwość opracowania na indywidualne zamówienie innych zmian oraz
modyfikacji.

















