Patrycja
- lustrzane odbicie
(DB 8670)
(1/1)
Pracownia: Bajer Dom
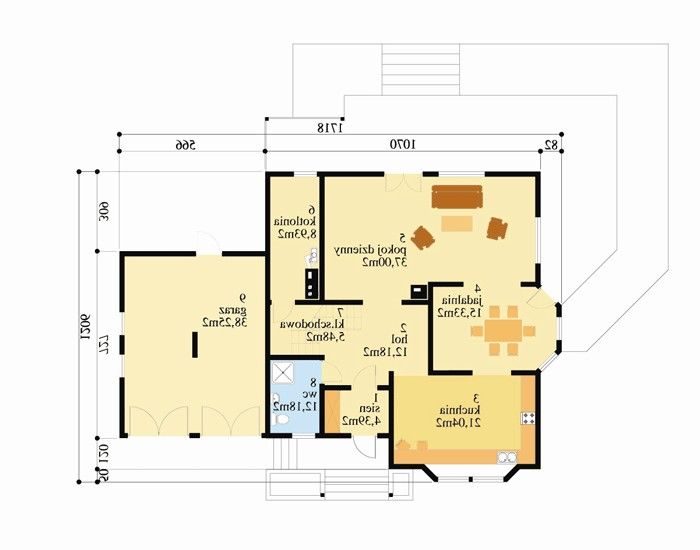
| pow. użytkowa | 218,37m2 | kubatura | b/d | kąt dachu | 45° |
|---|---|---|---|---|---|
| pow. zabudowy | 174,00m2 | wys. pomieszczeń | b/d | wymiary budynku | 17,18m x 12,06m |
| pow. dachu | b/d | wys. budynku | b/d | min. wym. działki | 25,18m x 22,21m |





Charakterystyka
Dom parterowy z poddaszem użytkowym i garażem na dwa samochody zaprojektowano dla rodzi-ny 4 - 5-cio osobowej. Dom podzielony jest na dwie strefy, dzienną w której znajduje się na parte-rze hol, pokój dzienny, kuchnia, jadalnia, kotłownia i wc oraz strefa nocna na poddaszu 4 sypial-nie z łazienką.
Technologia i konstrukcja
Dom jednorodzinny parterowy z użytkowym poddaszem w technologii szkieletu drewnianego. Ściany słupki drewniane o przekroju 4 x 14 cm ocieplone wełną mineralną, stropy drewniane na belkach 5 x 24 cm .Więźba dachowa drewniana . Dach kryty blachodachówką
















