Paulina
- lustrzane odbicie
(DB 2432)
(1/1)
Pracownia: Bajer Dom, autor projektu: arch. Marek Bajer
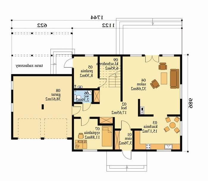
| pow. użytkowa | 180,42m2 | kubatura | 921,30m3 | kąt dachu | 43° |
|---|---|---|---|---|---|
| pow. zabudowy | 191,50m2 | wys. pomieszczeń | 2,70m | wymiary budynku | 17,44m x 9,86m |
| pow. dachu | b/d | wys. budynku | b/d | min. wym. działki | 25,44m x 18,86m |





Technologia i konstrukcja
Dom jednorodzinny w technologii szkieletu drewnianego. Ściany słupki drewniane o przekroju 4 x 14 cm ocieplone wełną mineralną. stropy drewniane na belkach 5 x 24 cm .Więźba dachowa drewniana . Dach kryty blachodachówką
Charakterystyka
Dom parterowy z poddaszem użytkowym i garażem na dwa samochody zaprojektowano dla rodziny 4 - 5-cio osobowej. Dom podzielony jest na dwie strefy. dzienną w której znajduje się na parterze hol. pokój dzienny. kuchnia. pralnia - kotłownia. pokój i wc oraz strefa nocna na poddaszu 3 sypialnie z łazienką.
















