Katarzyna
- lustrzane odbicie
(DB 2428)
Pracownia: Bajer Dom, autor projektu: arch. Marek Bajer
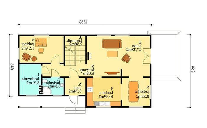
| pow. użytkowa | 156,60m2 | kubatura | 626,20m3 | kąt dachu | 40° |
|---|---|---|---|---|---|
| pow. zabudowy | 121,50m2 | wys. pomieszczeń | 2,70m | wymiary budynku | 13,77m x 7,58m |
| pow. dachu | b/d | wys. budynku | b/d | min. wym. działki | 21,77m x 16,58m |





Technologia i konstrukcja
Dom jednorodzinny w technologii szkieletu drewnianego. Ściany słupki drewniane o przekroju 4 x 14 cm ocieplone wełną mineralną. stropy drewniane na belkach 5 x 24 cm .Więźba dachowa drewniana . Dach kryty blachodachówką
Charakterystyka
Dom parterowy zaprojektowano dla rodziny 4 - 5-cio osobowej. Dom podzielony jest na dwie strefy. dzienną w której znajduje się na parterze sień. korytarz. jadalnia. salon. kuchnia. gabinet. łazienka. kotłownia oraz strefa nocna na poddaszu 3 sypialnie. łazienka oraz 2 garderoby.
















