Z34 D L
- lustrzane odbicie
(DB 17356)
(1/1)
Pracownia: Z500, autor projektu: Z500
| pow. użytkowa | 96,05m2 | kubatura | 326,00m3 | kąt dachu | 40° |
|---|---|---|---|---|---|
| pow. zabudowy | 97,77m2 | wys. pomieszczeń | b/d | wymiary budynku | 10,20m x 7,20m |
| pow. dachu | b/d | wys. budynku | b/d | min. wym. działki | 17,38m x 17,20m |
Parter: 59,00 m2(59,00 m2)
| Lp. | Opis | Powierzchnia |
|---|---|---|
| 1 | Sień | 3,20 m2 |
| 2 | Kuchnia | 6,60 m2 |
| 3 | Salon+jadalnia | 26,20 m2 |
| 5 | Pokój | 10,50 m2 |
| 6 | WC | 3,50 m2 |
| 7 | Schowek | 1,80 m2 |
| 7 | P.g.+pralnia | 5,40 m2 |
| 8 | Hol | 1,80 m2 |
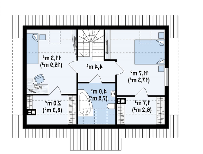
Poddasze: 35,30 m2(35,30 m2)
| Lp. | Opis | Powierzchnia |
|---|---|---|
| 1 | Hol | 4,80 m2 |
| 2 | Pokój | 11,10 m2 |
| 3 | Garderoba | 1,60 m2 |
| 4 | Pokój | 11,70 m2 |
| 5 | Łazienka | 4,30 m2 |
| 6 | Garderoba | 1,80 m2 |





Wariant domu w technologii szkieletowej, wersja LUSTRO- W rzucie parteru wykonano minimalne zmiany w układzie okien i drzwi na taras.
Ściany: szkielet drewniany, bale
Dach: dachówka, blachodachówka
Strop: drewniany
















