Z3 BAL GP
- lustrzane odbicie
(DB 17334)
Pracownia: Z500, autor projektu: Z500
| pow. użytkowa | 117,29m2 | kubatura | 380,00m3 | kąt dachu | 38° |
|---|---|---|---|---|---|
| pow. zabudowy | 90,74m2 | wys. pomieszczeń | b/d | wymiary budynku | 12,32m x 8,22m |
| pow. dachu | 162,74m2 | wys. budynku | b/d | min. wym. działki | 19,32m x 16,22m |
Parter: 59,40 m2(59,40 m2)
| Lp. | Opis | Powierzchnia |
|---|---|---|
| 1 | Sień | 4,30 m2 |
| 2 | Hol+schody | 10,40 m2 |
| 3 | Kuchnia | 10,10 m2 |
| 4 | Salon+jadalnia | 28,20 m2 |
| 5 | Pom. gosp. | 3,90 m2 |
| 6 | WC | 2,50 m2 |
| 7 | Garaż | 18,50 m2 |
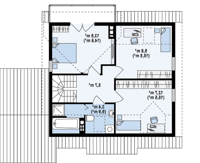
Poddasze: 51,70 m2(51,70 m2)
| Lp. | Opis | Powierzchnia |
|---|---|---|
| 1 | Hol | 5,70 m2 |
| 3 | Pokój | 13,90 m2 |
| 4 | Pokój | 12,70 m2 |
| 5 | Pokój | 9,80 m2 |
| 6 | Łazienka | 3,40 m2 |
| 7 | Balkon | 6,20 m2 |

Projekt Z3 w technologii \"z bala\" - wersja z garażem jednostanowiskowym po prawej stronie (18,5m2).
Ściany: szkielet drewniany, bale
Dach: dachówka
Strop: drewniany















