Z14 D
- lustrzane odbicie
(DB 16452)
(1/1)
Pracownia: Z500, autor projektu: Z500
| pow. użytkowa | 112,12m2 | kubatura | 317,00m3 | kąt dachu | 38° |
|---|---|---|---|---|---|
| pow. zabudowy | 82,62m2 | wys. pomieszczeń | b/d | wymiary budynku | 9,90m x 7,80m |
| pow. dachu | 132,04m2 | wys. budynku | b/d | min. wym. działki | 16,20m x 16,10m |
Parter: 70,60 m2(70,60 m2)
| Lp. | Opis | Powierzchnia |
|---|---|---|
| 1 | Sień | 4,50 m2 |
| 2 | Hol | 8,10 m2 |
| 3 | Kuchnia+spiżarka | 13,20 m2 |
| 4 | Salon | 24,00 m2 |
| 5 | Pokój | 12,50 m2 |
| 6 | Łazienka | 4,10 m2 |
| 7 | Pom. gosp. | 4,20 m2 |
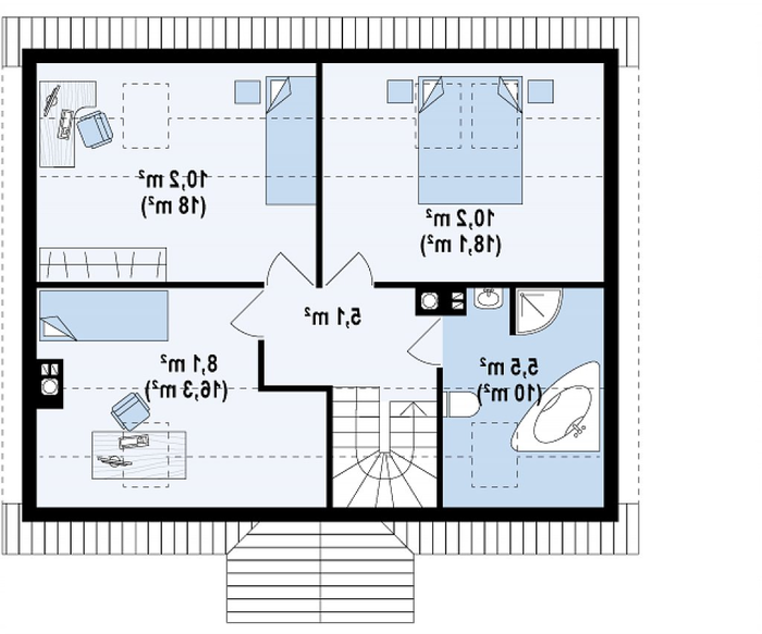
Poddasze: 39,20 m2(39,20 m2)
| Lp. | Opis | Powierzchnia |
|---|---|---|
| 1 | Hol | 5,10 m2 |
| 2 | Pokój | 8,10 m2 |
| 3 | Pokój | 10,20 m2 |
| 4 | Pokój | 10,20 m2 |
| 5 | Łazienka | 5,60 m2 |





Wariant podstawowy w technologii szkieletowej.
Ściany: szkielet drewniany, bale
Dach: dachówka, blachodachówka
Strop: drewniany















