Z2 f+ D
- lustrzane odbicie
(DB 16437)
(1/1)
Pracownia: Z500, autor projektu: Z500
| pow. użytkowa | 115,93m2 | kubatura | 502,00m3 | kąt dachu | 32° |
|---|---|---|---|---|---|
| pow. zabudowy | 133,50m2 | wys. pomieszczeń | b/d | wymiary budynku | 14,70m x 12,28m |
| pow. dachu | 248,13m2 | wys. budynku | b/d | min. wym. działki | 20,70m x 20,28m |
Parter: 115,90 m2(115,90 m2)
| Lp. | Opis | Powierzchnia |
|---|---|---|
| 1 | Sień | 3,00 m2 |
| 2 | Hol | 5,00 m2 |
| 3 | WC | 2,10 m2 |
| 4 | Kuchnia+jadalnia | 20,50 m2 |
| 5 | Salon | 37,30 m2 |
| 6 | Hol | 5,10 m2 |
| 7 | Pokój | 9,90 m2 |
| 8 | Pokój | 12,70 m2 |
| 9 | Pokój | 8,90 m2 |
| 10 | Łazienka | 6,20 m2 |
| 11 | Pom. gosp. | 2,80 m2 |
| 12 | Spiżarka | 2,40 m2 |
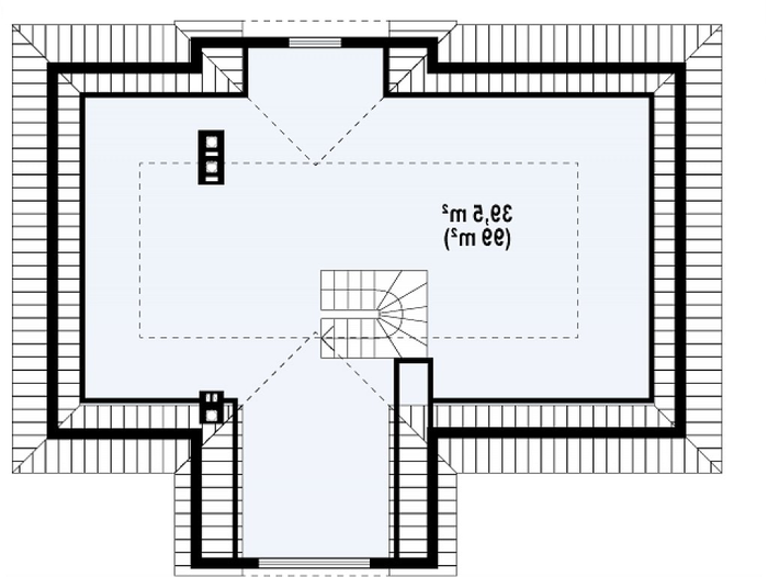
Poddasze: 39,50 m2(39,50 m2)
| Lp. | Opis | Powierzchnia |
|---|---|---|
| 1 | Strych | 39,50 m2 |





Projekt Z2f+ D jest wersją szkieletową projektu, który dodatkowo został powiększony w części frontowej.
Ściany: szkielet drewniany
Dach: dachówka, blachodachówka
Strop: drewniany















