Z1 D
- lustrzane odbicie
(DB 16430)
(1/1)
Pracownia: Z500, autor projektu: Z500
| pow. użytkowa | 99,10m2 | kubatura | 273,00m3 | kąt dachu | 42° |
|---|---|---|---|---|---|
| pow. zabudowy | 69,00m2 | wys. pomieszczeń | b/d | wymiary budynku | 8,18m x 8,40m |
| pow. dachu | 132,32m2 | wys. budynku | b/d | min. wym. działki | 16,18m x 16,40m |
Parter: 58,20 m2(58,20 m2)
| Lp. | Opis | Powierzchnia |
|---|---|---|
| 1 | Pom. gosp. | 3,50 m2 |
| 2 | WC | 3,50 m2 |
| 3 | Salon | 35,70 m2 |
| 4 | Hol | 3,20 m2 |
| 5 | Sień | 3,30 m2 |
| 6 | Kuchnia | 9,00 m2 |
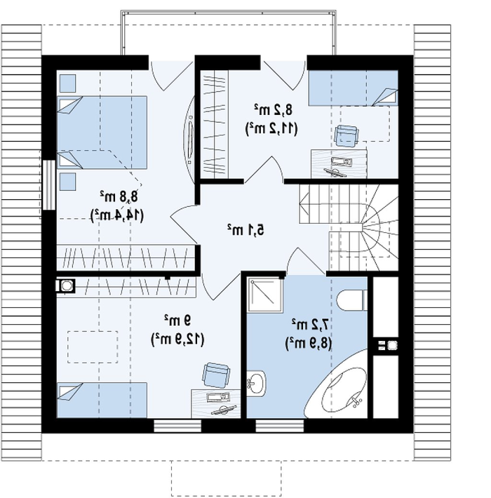
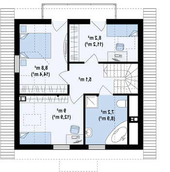
Poddasze: 38,30 m2(38,30 m2)
| Lp. | Opis | Powierzchnia |
|---|---|---|
| 1 | Pokój | 9,00 m2 |
| 2 | Hol | 5,10 m2 |
| 3 | Pokój | 8,20 m2 |
| 4 | Pokój | 8,80 m2 |
| 6 | Łazienka | 7,20 m2 |





Ściany: szkielet drewniany
Dach: dachówka, blachodachówka
Strop: drewniany
















