Pracownia: ProArte, autor projektu: ProArte
| pow. użytkowa | 137,20m2 | kubatura | 655,45m3 | kąt dachu | 40° |
|---|---|---|---|---|---|
| pow. zabudowy | 93,35m2 | wys. pomieszczeń | b/d | wymiary budynku | 12,00m x 9,20m |
| pow. dachu | b/d | wys. budynku | b/d | min. wym. działki | 20,00m x 17,20m |
Piwnica: 32,51 m2(32,51 m2)
| Lp. | Opis | Powierzchnia |
|---|---|---|
| 01. | Klatka schodowa | 2,03 m2 |
| 02. | Komunikacja | 5,96 m2 |
| 03. | Piwnica | 10,78 m2 |
| 04. | Piwnica | 10,00 m2 |
| 05. | Kotłownia | 3,74 m2 |
Przyziemie: 109,41 m2(109,41 m2)
| Lp. | Opis | Powierzchnia |
|---|---|---|
| 01. | Wiatrołap | 6,45 m2 |
| 02. | Klatka Schodowa | 2,25 m2 |
| 03. | Łazienka | 12,70 m2 |
| 04. | Sauna | 3,20 m2 |
| 05. | Garderoba | 3,25 m2 |
| 06. | Komunikacja | 6,23 m2 |
| 07. | Kuchnia z aneksem jadalnym | 10,62 m2 |
| 08. | Pokój dzienny | 26,86 m2 |
| 09. | Taras | 17,05 m2 |
| 10. | Wiata | 20,80 m2 |
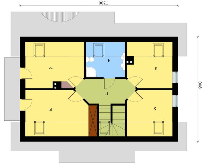
Poddasze: 53,29 m2(53,29 m2)
| Lp. | Opis | Powierzchnia |
|---|---|---|
| 01. | Komunikacja | 7,03 m2 |
| 02. | Pokój | 7,70 m2 |
| 03. | Pokój | 8,06 m2 |
| 04. | Łazienka | 4,72 m2 |
| 05. | Sypialnia | 11,97 m2 |
| 06. | Sypialnia | 13,81 m2 |
To dom, który nowym właścicielom zagwarantuje wygodę oraz bezpieczeństwo. Jest wzbogacony o podpiwniczenie, wiatę, znaczącemu ulepszeniu został poddany cały układ pomieszczeń. Od frontu prezentuje się niezwykle korzystnie. Pierwszym rzucającym się w oczy elementem jest solidny cokolik, który obiega dom dookoła, wieńczy go klinkierowy ganek. Dodatkowo do bryły budynku przystaje zadaszenie wiaty, które zgodnie koresponduje z dachem domu. Piękny układ elewacji jest zapowiedzią przemyślanego i efektownego wnętrza. Na parterze znajdują się kuchnia z aneksem jadalnym i salonem oraz łazienka. Z salonu wyjdziemy na przepiękny taras, na którym można urządzić zarówno spotkanie ze znajomymi przy kawie i ciastku, jak i letnie obiady z rodziną. Wracając do wnętrza budynku warto wspomnieć o dyskretnie umieszczonym pod schodami przejściu do piwnicy, w której mieści się kotłownia i trzy inne pomieszczenia. Poddasze mieści trzy obszerne sypialnie i wygodną łazienkę.
Technologia tradycyjna :
- ściany zewnętrzne murowane grubości 30 cm,
działowe gr. 12 cm. Wszystkie ściany wykonane z pustaków ceramicznych
\"POROTHERM\".
- konstrukcja więźby dachowej drewniana, pokrycie dachówka
ceramiczna.
- istnieje mozliwośc adaptacji obiektu na budynek całoroczny
- docieplenie warstwą styropianu gr. 10 cm.
Technologia szkieletu drewnianego :
- ściany zewnętrzne : słupki 4x15 rozstawione max. co 40cm obite
zewnątrz płytą OSB 3 1,2cm , a wewnątrz płytą GK 1,25cm , przestrzeń
pomiędzy słupkami wypełniona wełną mineralną 15cm.
- ściana wewnętrzna : słupki 4x7 rozstawione max. co 40cm obite z
dwóch stron płytą GK 1,25cm przestrzeń pomiędzy słupkami wypełniona
wełną mineralną 7cm
- konstrukcja więźby dachowej drewniana, pokrycie dachówka
ceramiczna.
- istnieje mozliwośc adaptacji obiektu na budynek całoroczny
- docieplenie warstwą styropianu gr. 10 cm.

















