nazwa: pow. użytkowa: do: nr projektu:
znaleziono
projektów:

Pracownia

> zobacz więcej

Typ budynku

> zobacz więcej

Poddasze

Dach

Garaż

Technologia

Pokaż
GM 2 budynek garażowo-mieszkalny
- lustrzane odbicie
(DB 10362)
(1/1)

Pracownia: ProArte, autor projektu: ProArte

Zamknij
Pokaż
pow. użytkowa 36,50m2 kubatura 442,00m3 kąt dachu 30 i 20°
pow. zabudowy 92,40m2 wys. pomieszczeń b/d wymiary budynku 13,40m x 7,20m
pow. dachu b/d wys. budynku b/d min. wym. działki 22,60m x 15,10m

Przyziemie: 83,72 m2(83,72 m2)

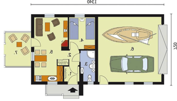
Rzut  projektu GM 2 budynek garażowo-mieszkalny
Lp.OpisPowierzchnia
1.Wiatrołap2,19 m2
2.Komunikacja z garderobą2,88 m2
3.Łazienka4,18 m2
4.Sypialnia8,03 m2
5.Pokój dzienny z aneksem kuchennym18,60 m2
6.Garaż39,34 m2
7.Weranda8,50 m2

Opis projektu

\"\"

Projekt budynku garażowo-mieszkalnego .Projekt garażu składa się z czterech egzemplarzy a w tym części architektonicznej, konstrukcyjnej i instalacji wewnętrznej elektrycznej. W projekcie załączone są podstawowe zestawienie stali, drewna i stolarki okienno-drzwiowej. Do projektu dołączamy bezpłatną zgodę na wprowadzenie zmian, oświadczenie projektantów o wykonaniu projektu zgodnie z obowiązującymi normami i przepisami oraz kserokopie uprawnień projektantów wraz z aktualnym wpisem do izby.

Orientacyjna ilość pustaków porotherm 30 p+w : 1800 szt.

Opis technologii

\"\"

Technologia tradycyjna, ściany zewnętrzne murowane grubości 30 cm + 10 cm styropian, ściany wewnętrzne (nośne) gr. 25 cm i działowe gr. 12 cm. Wszystkie ściany wykonane z pustaków ceramicznych POROTHERM. Konstrukcja więźby dachowej drewniana, pokrycie dachówka ceramiczna.

DOBRY DOM

ul. Wrzesława Romańczuka 6, 35-302 Rzeszów

8:00-16:00

17 852 52 20