Perkoz
- lustrzane odbicie
(DB 5696)
(1/1)
Pracownia: Archeton, autor projektu: Ryszard Czapla
| pow. użytkowa | 136,50m2 | kubatura | 657,20m3 | kąt dachu | 40° |
|---|---|---|---|---|---|
| pow. zabudowy | 105,10m2 | wys. pomieszczeń | b/d | wymiary budynku | 13,30m x 9,10m |
| pow. dachu | 232,00m2 | wys. budynku | b/d | min. wym. działki | 21,30m x 19,10m |
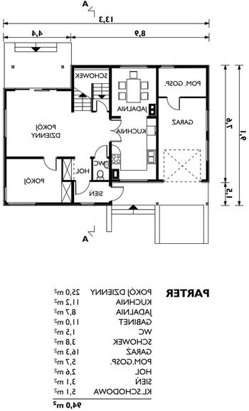
Parter: 74,50 m2(74,50 m2)
| Lp. | Opis | Powierzchnia |
|---|---|---|
| pokój dzienny | 24,60 m2 | |
| garaż | 16,20 m2 | |
| gabinet | 10,70 m2 | |
| kuchnia | 10,60 m2 | |
| jadalnia | 8,80 m2 | |
| pomieszczenie gospodarcze | 5,70 m2 | |
| klatka schodowa | 5,10 m2 | |
| wiatrołap | 2,90 m2 | |
| sień | 2,50 m2 | |
| schowek | 2,20 m2 | |
| wc | 1,40 m2 |
Poddasze: 79,00 m2(79,00 m2)
| Lp. | Opis | Powierzchnia |
|---|---|---|
| pokój | 17,70 m2 | |
| pokój | 15,90 m2 | |
| pokój | 12,10 m2 | |
| przedpokój | 10,40 m2 | |
| pokój | 10,00 m2 | |
| łazienka | 5,90 m2 | |
| garderoba | 3,70 m2 | |
| klatka schodowa | 3,30 m2 |





Dom parterowy, z użytkowym poddaszem, niepodpiwniczony, z garażem. Uwaga! Projekt dostępny wyłącznie w wersji katalogowej.Wejście z podcienia poprzez wiatrołap oraz sień bezpośrednio do pokoju dziennego, skąd są dostępne również: na lewo kuchnia z jadalnią oraz w.c., a na prawo gabinet. Z podcienia dostajemy się do garażu z pomieszczeniem gospodarczym. Na poddaszu usytuowano 4 pokoje sypialne, garderobę oraz łazienkę. Bryłę budynku tworzy prostopadłościan nakryty dachem dwuspadowym o kącie nachylenia 40°. Prostą bryłę urozmaicają podcienia wejścia i wyjścia na taras. Bryłę wzbogacają również drewniane listwy mocowane do muru, które imitują mur pruski.Wersja technologiczna: szkielet drewniany lekkiSciany zewnętrzne: Szkielet drewniany. Izolacja produktami Knauf Insulation. Okładziny z płyt cementowych Aquapanel Outdoor firmy KNAUFSciany wewnętrzne: Szkielet drewniany. Izolacja produktami Knauf Insulation. Okładziny z płyt gipsowo-włóknowych Vidiwall gr. 12,5 mm firmy KNAUFStrop: Drewniany. Izolacja produktami Knauf Insulation.Konstrukcja dachu: drewniana, jętkowaRodzaj schodow: drewniane firmy RINTALPokrycie dachu: dachówka ceramiczna firmy RUPPCERAMIKAElewacje: tynk cienkowarstwowy oraz okładziny z betonowego kamienia elewacyjnego RELIEFTyp ogrzewania: kocioł na gaz















