Pracownia: ProArte, autor projektu: ProArte
| pow. użytkowa | 45,76m2 | kubatura | 316,00m3 | kąt dachu | 30° |
|---|---|---|---|---|---|
| pow. zabudowy | 79,02m2 | wys. pomieszczeń | b/d | wymiary budynku | 13,15m x 7,50m |
| pow. dachu | b/d | wys. budynku | b/d | min. wym. działki | 21,20m x 15,50m |
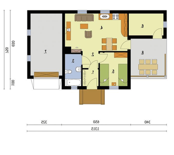
Parter: 76,41 m2(76,41 m2)
| Lp. | Opis | Powierzchnia |
|---|---|---|
| 1. | Wiatrołap | 2,40 m2 |
| 2. | Komunikacja | 2,45 m2 |
| 3. | Łazienka | 4,70 m2 |
| 4. | Pokój dzienny z aneksem kuchennym | 20,97 m2 |
| 5. | Sypialnia | 8,38 m2 |
| 6. | Pom. gospodarcze | 6,86 m2 |
| 7. | Garaż | 17,70 m2 |
| 8. | Weranda | 12,95 m2 |
Projekt dostępny również jako CAŁOROCZNY!!! Ze względu na docieplenie budynku do każdego wymiaru widocznego na rzucie należy dodać 20cm. \"Modena\" Modena to prześliczny domek letniskowy, który sprawi, że będziesz za nim tęsknić zaraz po tym jak skończy się urlop! Deskowany szczyt oraz drewniane wykończenia elewacji spowodują, że wyraźnie wyczujesz harmonię między tym uroczym budynkiem a naturą, która go otacza. Nieodparty podziw budzą drewniane okiennice, którymi każdego poranka do wnętrza domku zostaną wpuszczone promyki dopiero co wschodzącego słońca, dzięki którym już od pierwszej chwili dzień stanie się piękniejszy. Jeżeli jesteś otwarty na większą ilość światła, przy równie zachwycających okiennicach, to koniecznie zobacz Malabo! Nie musisz martwić się o stan portfela, ponieważ Modena została zaprojektowana tak, aby jej niewielka powierzchnia dachu, wynikająca z małego kontu jego nachylenia, skupiona była na niskich kosztach. Innymi słowy Modena to domek dla każdego! Wszystkie wygody, którymi dotychczas cieszyłeś się wyłącznie w domu/mieszkaniu zostaną zapewnione, gdyż w budynku znajdują się najpotrzebniejsze pomieszczenia użytku codziennego + dodatkowo garaż. Do tego domek został wyposażony w werandę, na której wspólne wakacyjne posiłki przyniosą nieograniczoną radość, oraz niewielki pomieszczenie gospodarcze. Projekt składa się z części architektonicznej, konstrukcyjnej, wewnętrznych instalacji wod.-kan, c. o. i elektrycznej. W projekcie załączone są podstawowe zestawienie stali, drewna i stolarki okienno-drzwiowej. Do projektu dołączamy bezpłatną zgodę na wprowadzenie zmian, oświadczenie projektantów o wykonaniu projektu zgodnie z obowiązującymi normami i przepisami oraz kserokopie uprawnień projektantów wraz z aktualnym wpisem do izby. W przypadku zamówienia projektu w technologii lekkiej, drewnianej konstrukcji szkieletowej, powierzchnia użytkowa budynku jest o około 7% większa.
Technologia tradycyjna , ściany zewnętrzne murowane grubości 30 cm, działowe gr. 12 cm. Wszystkie ściany wykonane z pustaków ceramicznych \"POROTHERM\".Strop gęstożebrowy „POROTHERM”o gr. 23 cm.. Konstrukcja więźby dachowej drewniana, pokrycie dachówka ceramiczna. Istnieje możliwośc adaptacji obiektu na budynek całoroczny - docieplenie warstwą styropianu gr. 10 cm
Projekt dostępny w wersji szkieletowej.















